Kampervest 35

2011 EZ Haarlem

Verkocht o.v.b.

Kampervest 35
Kampervest 35
Kampervest 35
Kampervest 35 Meer foto's

Omschrijving

Het kleinste grachtenpand van Haarlem – groots in charme en uitzicht!

Aan de rand van het bruisende centrum van Haarlem, aan Kampvest 35, ligt dit unieke en karaktervolle grachtenpand. Met vrij uitzicht over het water van de Kampervest en de singel, is dit misschien wel het kleinste grachtenpand van Haarlem — maar zeker één met een groots karakter.

Deze bijzondere stadswoning combineert historische charme met modern wooncomfort. Dankzij recente verbeteringen, zoals een nieuwe geïsoleerde betonvloer met vloerverwarming, grotendeels HR++ beglazing en een gloednieuwe CV-installatie (2025), is het huis helemaal klaar voor de toekomst.

De begane grond biedt een lichte woonkamer met open keuken waar de grote dakkoepel voor extra daglicht en een ruimtelijk gevoel zorgt. De moderne badkamer is in 2025 deels vernieuwd en er is een separaat toilet en een bergkast aanwezig.
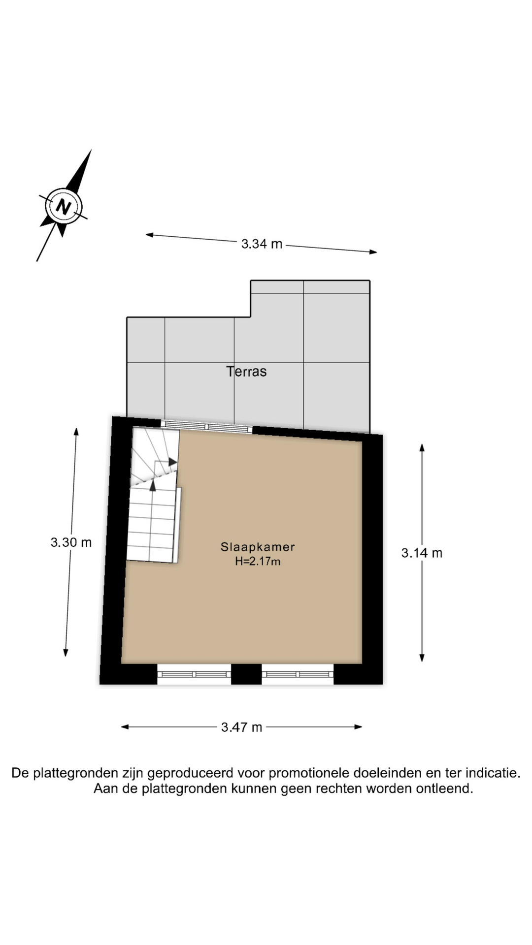
Op de eerste verdieping bevindt zich een sfeervolle slaapkamer met balkenplafond en toegang tot een knus dakterras – een heerlijke plek om beschut buiten te zitten.
De bovenste verdieping biedt een tweede slaapkamer met balkenplafond en dakkapel.

De ligging is ideaal: de Haarlemse binnenstad ligt letterlijk om de hoek, met cafés, restaurants, winkels en cultuur binnen handbereik. Ook station Haarlem, stadsparken en uitvalswegen richting Amsterdam en het strand zijn snel bereikbaar.

De pluspunten op een rij:
• Charmant grachtenpand met uitzicht over de singel
• Zeer goed onderhouden en instapklaar
• Sfeervolle woonkamer met vloerverwarming
• Knus dakterras (gedoogd)
• Lichte open keuken met inbouwapparatuur
• Moderne badkamer met douche en wastafel, apart toilet
• Twee sfeervolle slaapkamers met balkenplafond
• Nieuwe geïsoleerde betonvloer met vloerverwarming (2025)
• HR+ en HR ++ beglazing, dakisolatie
• Bouwkundig gekeurde woning (rapport ter inzage)
• Toplocatie aan vaarwater en rand van Haarlem Centrum

Kortom, een unieke kans om te wonen in een stukje Haarlemse geschiedenis — compact, sfeervol en met een uitzicht dat nooit verveelt.

Indeling, afmetingen en woning in 3D!
Beleef deze woning nu alvast virtueel, in 3D. Loop door de woning heen, kijk van een afstand of zoom in. Onze virtuele tour, de -360 graden- foto’s, de video en de plattegronden geven je een compleet beeld van de indeling, afmetingen en het design.

Woonomgeving.
Je woont hier op een van de mooiste plekken van Haarlem: aan het vaarwater, aan de rand van de oude binnenstad en op loopafstand van het centrum. Haarlem staat niet voor niets bekend als een van de leukste citytrips van Nederland. De stad aan het Spaarne betovert met haar monumentale panden, sfeervolle grachten en talloze restaurants, koffietentjes en boetiekjes met karakter.
De Grote Markt en de Botermarkt bruisen van de gezelligheid met wekelijkse markten vol lekkernijen en curiosa. Ook op cultureel vlak is er altijd wat te beleven, van musea en theaters tot parken en bioscopen.
Zin in rust en natuur? Wandel door het Kenaupark of de Haarlemmerhout – het oudste stadsbos van Nederland – of fiets in twintig minuten naar de duinen en het strand van Bloemendaal of Zandvoort.
Bushaltes liggen om de hoek, met verbindingen naar Amsterdam, de Zuidas en Schiphol. Station Haarlem en de belangrijkste uitvalswegen zijn snel bereikbaar. De woning ligt in parkeervergunninggebied “Binnenstad”, waar zonder wachttijd één vergunning per adres beschikbaar is. Parkeergarages De Kamp en Houtplein liggen op slechts 5 minuten lopen.

Goed om te weten:
– Woonoppervlakte: ca. 41 m² (NEN- meetrapport)
– Gebouwd rond 1904 op 22 m² eigen grond
– Vloerverwarming op de begane grond
– Nieuwe C.V. ketel (2025)
– Vloerverwarming begane grond (2025)
– Elektrische paneelradiatoren eerste verdieping
– Energielabel: G
– Oplevering in overleg

-English-

The smallest canal house in Haarlem – big on charm and views!

On the edge of Haarlem’s lively city centre, at Kampvest 35, lies this unique and characterful canal house. With open views over the water of the Kampervest and the canal, this may be the smallest canal house in Haarlem – but it certainly has a big personality.

This special townhouse combines historic charm with modern living comfort. Thanks to recent improvements, such as a new insulated concrete floor with underfloor heating, mostly HR++ glazing and a brand new central heating system (2025), the house is completely ready for the future.

The ground floor offers a bright living room with an open kitchen, where the large skylight provides extra daylight and a spacious feeling. The modern bathroom was partially renovated in 2025 and there is a separate toilet and a storage cupboard.
On the first floor is a cosy bedroom with a beamed ceiling and access to a cosy roof terrace — a wonderful place to sit outside in the shelter.
The top floor offers a second bedroom with beamed ceiling and dormer window.

The location is ideal: Haarlem’s city centre is literally around the corner, with cafés, restaurants, shops and culture within easy reach. Haarlem station, city parks and roads to Amsterdam and the beach are also within easy reach.

The advantages at a glance:
• Charming canal house with a view over the canal
• Very well maintained and ready to move in
• Cosy living room with underfloor heating
• Cosy roof terrace (tolerated)
• Bright open kitchen with built-in appliances
• Modern bathroom with shower and washbasin, separate toilet
• Two cosy bedrooms with beamed ceilings
• New insulated concrete floor with underfloor heating (2025)
• HR+ and HR ++ glazing, roof insulation
• Structurally inspected property (report available for inspection)
• Prime location on the waterfront and on the edge of Haarlem city centre

In short, a unique opportunity to live in a piece of Haarlem history — compact, charming and with a view that never gets boring.

Layout, dimensions and property in 3D!
Experience this property virtually, in 3D. Walk through the property, view it from a distance or zoom in. Our virtual tour, the 360-degree photos, the video and the floor plans give you a complete picture of the layout, dimensions and design.

Living environment.
You will be living in one of the most beautiful spots in Haarlem: on the waterfront, on the edge of the old town and within walking distance of the centre. It is not without reason that Haarlem is known as one of the most enjoyable city trips in the Netherlands. The city on the Spaarne river enchants with its monumental buildings, atmospheric canals and countless restaurants, coffee shops and boutiques with character.
The Grote Markt and Botermarkt are bustling with weekly markets full of delicacies and curiosities. There is also always something to do in terms of culture, from museums and theatres to parks and cinemas.
Fancy some peace and quiet and nature? Take a walk through the Kenaupark or the Haarlemmerhout – the oldest urban forest in the Netherlands – or cycle to the dunes and the beach at Bloemendaal or Zandvoort in twenty minutes.
Bus stops are just around the corner, with connections to Amsterdam, the Zuidas and Schiphol. Haarlem station and the main roads are within easy reach. The property is located in the “Binnenstad” parking permit area, where one permit per address is available without a waiting period. The De Kamp and Houtplein car parks are only a 5-minute walk away.

Good to know:
– Living area: approx. 41 m² (NEN measurement report)
– Built around 1904 on 22 m² of private land
– Underfloor heating on the ground floor
– New central heating boiler (2025)
– Underfloor heating on the ground floor (2025)
– Electric panel radiators on the first floor
– Energy label: G
– Delivery in consultation

Kenmerken

Type woning
Tussenwoning
Soort woning
Woonhuis
Bouwjaar
1904
Oppervlakte
41 m2
Perceeloppervlakte
22 m2
Aantal kamers
3
Buitenruimte
Geen_tuin
Onderhoud binnen
Goed
Onderhoud buiten
Goed
Energielabel
G
Status
Verkocht o.v.b.
Overige inpandige ruimte
0 m2
Externe bergruimte
0 m2
Inhoud
165 m3
Aantal badkamers
1
Isolatie
Dakisolatie, Vloerisolatie
Vraagprijs
€ 350.000,- k.k.
Aanvaarding
In overleg
Soort woning
Eengezinswoning
Bouwvorm
Bestaande bouw
Ligging
Aan water, In centrum, Vrij uitzicht, Aan vaarwater
Aantal slaapkamers
2
Daktype
Samengesteld dak
Warm water
CV ketel
Verwarming
CV ketel, Electrische verwarming
Type ketel
Intergas Kombi Kompakt HRE 28/24
Tuin
Geen tuin
Parkeerfaciliteiten
Betaald parkeren, Parkeervergunningen
Permanente bewoning
Ja
Huidig gebruik
Woonruimte
Huidge bestemming
Woonruimte
Voorzieningen
Glasvezel kabel

Vraag,
of bezichtiging?

Neem contact op!

inge binsbergen

Inge
Binsbergen

Binnendienstmedewerker

Meer informatie?