Karel van Manderstraat 108

2014 VH Haarlem

Onder bod

C
Karel van Manderstraat 108
Karel van Manderstraat 108
Karel van Manderstraat 108
Karel van Manderstraat 108 Meer foto's

Omschrijving

Welkom in de Karel van Manderstraat 108, een charmante jaren ’30-woning vol karakter, licht en comfort. Authentieke details zoals de erker en het glas-in-lood zorgen voor een warme, sfeervolle uitstraling, terwijl moderne afwerkingen het woongemak van nu bieden.

De lichte woonkamer met fraaie erker is een heerlijke plek om te ontspannen en te genieten van de rustige straat. Aan de achterzijde bevindt zich de open keuken met diverse inbouwapparatuur, waaronder een koel-/vriescombinatie, vaatwasser, combi-oven/magnetron en een 4-pits gasfornuis. Hier kook je met gemak een uitgebreid diner terwijl je gezellig in contact blijft met familie of gasten.

Via de keukendeur loop je zo de zonnige achtertuin in, gelegen op het noordwesten – een fijne plek om ’s middags en ’s avonds van de zon te genieten of om lang na te tafelen tijdens warme zomeravonden. Hier staat tevens een houten schuur, handig voor fietsen of tuingereedschap en er is een achterom.

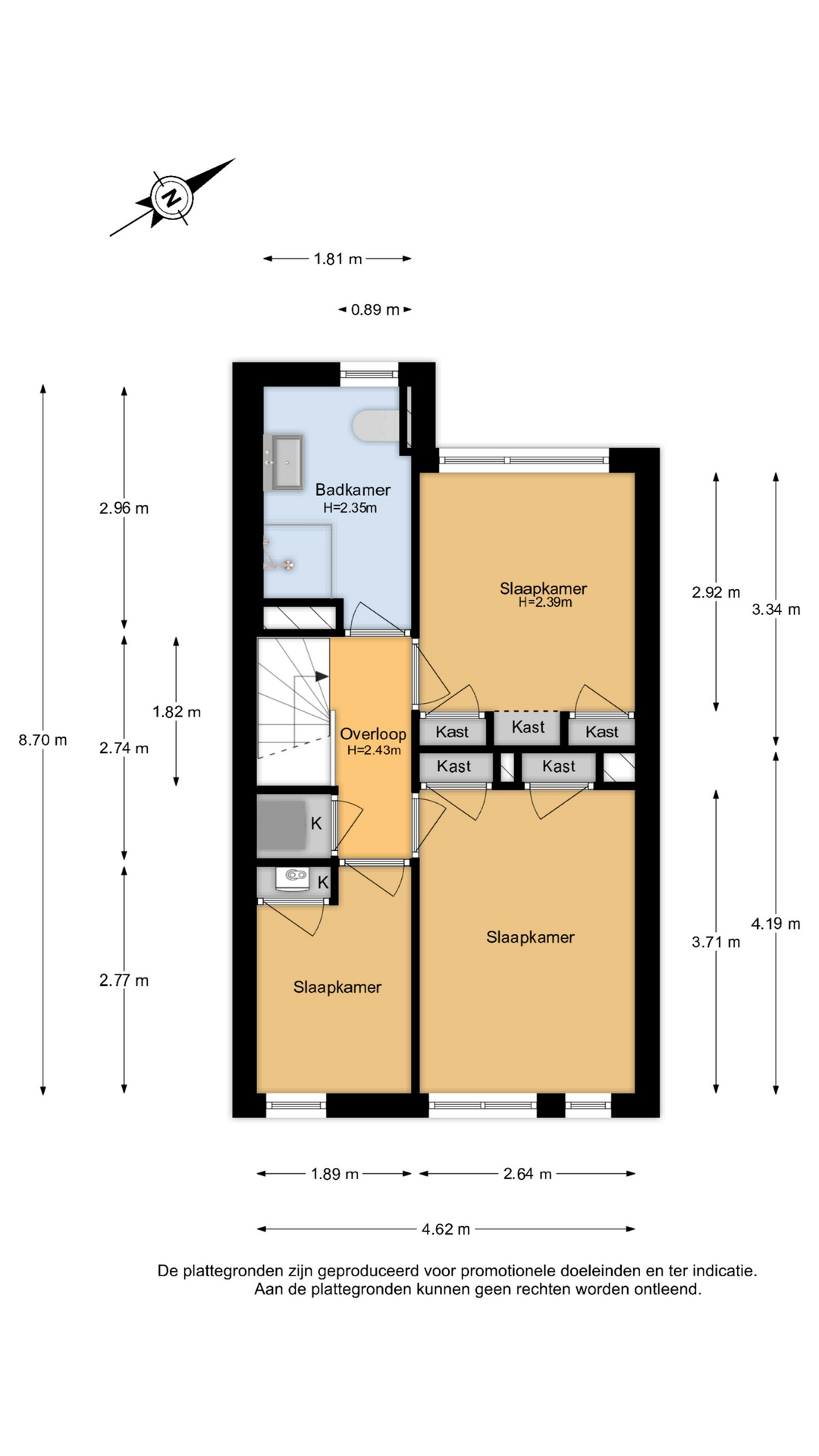
Op de eerste verdieping vind je drie comfortabele slaapkamers en een luxe badkamer met inloopdouche, toilet en wastafel. Op de overloop is bovendien een ruime kast met aansluiting voor wasmachine en droger, praktisch en netjes uit het zicht.

De pluspunten op een rij:
• Charmante jaren ’30 details zoals de unieke erker en het glas-in-lood
• Fijne en lichte woonkamer
• Open keuken met diverse inbouwapparatuur
• Zonnige achtertuin op het noordwesten met achterom
• Drie slaapkamers
• Luxe badkamer met inloopdouche, toilet en wastafel
• Ruime kast voor wasmachine en droger op de overloop
• Gelegen in een gezellige, kindvriendelijke buurt
• Op slechts 5 minuten fietsen van de Grote Markt

Leef heerlijk in de Leidsevaartbuurt
De ligging in de populaire Leidsevaartbuurt is absoluut ideaal te noemen, met station Haarlem en Heemstede-Aerdenhout (met directe verbinding naar Den Haag en Rotterdam) op korte fietsafstand. De buurt biedt alle voorzieningen die je je kunt wensen: speeltuinen, diverse basis- en middelbare scholen, kinderopvang, openluchtzwembad, sportclubs en sportvelden.

In de directe omgeving vind je bovendien meerdere winkels, supermarkten en goede busverbindingen. Het fraaie Landgoed Elswout en de randweg N208 liggen op korte afstand, en parkeren kan gratis voor de deur. Binnen 12 minuten wandel je naar de oude binnenstad en de gezellige Vijfhoek met winkels, markten, restaurants, terrassen en theater. En wil je even uitwaaien? In minder dan een half uur fiets je naar de duinen en sta je met je voeten op het strand.

Goed om te weten:
– Bouwkundig gekeurde woning, rapport ter inzage
– Woonoppervlakte: ca. 75,4m2 (NEN- meetrapport)
– Gebouwd rond 1928 op 79m2 eigen grond en een fundering op houten palen
– Verwarming en warm water via een Remeha c.v.-ketel uit 2021
– Dak in 2021 vernieuwd en geïsoleerd
– Energielabel C
– Oplevering in overleg

English

Welcome to Karel van Manderstraat 108, a charming 1930s home full of character, light, and comfort. Authentic details such as the bay window and stained glass add a warm, inviting atmosphere, while modern finishes provide all the comforts of contemporary living.

The bright living room with its beautiful bay window is a wonderful place to relax and enjoy the quiet street. At the rear of the house, you’ll find the open kitchen equipped with various built-in appliances, including a fridge-freezer, dishwasher, combination oven/microwave, and a 4-burner gas hob. It’s an ideal space to prepare a delicious meal while staying connected with family or guests.

Through the kitchen door, you step straight into the sunny northwest-facing garden – a delightful spot to enjoy the afternoon and evening sun or to dine outdoors on warm summer evenings. The garden also features a wooden shed, perfect for storing bikes or gardening tools, and there is a back entrance for added convenience.

On the first floor, you’ll find three comfortable bedrooms and a luxurious bathroom with a walk-in shower, toilet, and washbasin. On the landing, there’s also a spacious cupboard with connections for a washing machine and dryer – practical and neatly out of sight.

Key features at a glance:
• Charming 1930s details such as the unique bay window and stained glass
• Bright and inviting living room
• Open kitchen with various built-in appliances
• Sunny northwest-facing garden with back entrance
• Three bedrooms
• Luxurious bathroom with walk-in shower, toilet, and washbasin
• Large utility cupboard with washing machine and dryer connections on the landing
• Located in a friendly, family-oriented neighbourhood
• Just a 5-minute bike ride from Haarlem’s Grote Markt

Enjoy life in the Leidsevaartbuurt
The location in the popular Leidsevaartbuurt is absolutely ideal. Haarlem and Heemstede-Aerdenhout train stations – with direct connections to The Hague and Rotterdam – are just a short bike ride away. The neighbourhood offers every amenity you could wish for: playgrounds, several primary and secondary schools, childcare facilities, an outdoor swimming pool, sports clubs, and playing fields.

In the immediate vicinity, you’ll also find a variety of shops, supermarkets, and excellent bus connections. The beautiful Elswout Estate and the N208 ring road are close by, and parking is free right in front of the house. Within 12 minutes you can walk to Haarlem’s historic city centre and the charming Vijfhoek district with its shops, markets, restaurants, terraces, and theatre. Fancy some fresh air? In less than half an hour you can cycle to the dunes and stand with your feet in the sand.

Good to know:
– Structural inspection report available for review
– Living area: approx. 75.4 m² (NEN measurement report)
– Built around 1928 on 79 m² of freehold land with a wooden pile foundation
– Heating and hot water via Remeha central heating boiler (2021)
– Roof renewed and insulated in 2021
– Energy label C
– Delivery by mutual agreement

Kenmerken

Type woning
Tussenwoning
Soort woning
Woonhuis
Bouwjaar
1928
Oppervlakte
75 m2
Perceeloppervlakte
79 m2
Aantal kamers
4
Buitenruimte
Achtertuin
Onderhoud binnen
Goed
Onderhoud buiten
Goed
Energielabel
C
Status
Onder bod
Overige inpandige ruimte
0 m2
Externe bergruimte
3 m2
Inhoud
268 m3
Aantal badkamers
1
Isolatie
Dakisolatie, Dubbelglas, Voorzetramen
Vraagprijs
€ 539.000,- k.k.
Aanvaarding
In overleg
Soort woning
Eengezinswoning
Bouwvorm
Bestaande bouw
Ligging
Aan rustige weg, In woonwijk
Aantal slaapkamers
3
Daktype
Plat dak
Warm water
CV ketel
Verwarming
CV ketel
Type ketel
Remeha
Tuin
Achtertuin
Oppervlakte hoofdtuin
26 m2
Ligging hoofdtuin
Noordwest
Kwaliteit tuin
Fraai aangelegd
Schuur / Berging
Vrijstaand hout
Parkeerfaciliteiten
Betaald parkeren, Parkeervergunningen
Permanente bewoning
Ja
Huidig gebruik
Woonruimte
Huidge bestemming
Woonruimte
Voorzieningen
Glasvezel kabel

Vraag,
of bezichtiging?

Neem contact op!

inge binsbergen

Inge
Binsbergen

Binnendienstmedewerker

Meer informatie?